9364 Holland Avenue

  • $359,000
Durham, California
Active
9364 Holland Avenue
Durham, California
  • $359,000

Overview

  • Residential
  • Property Type
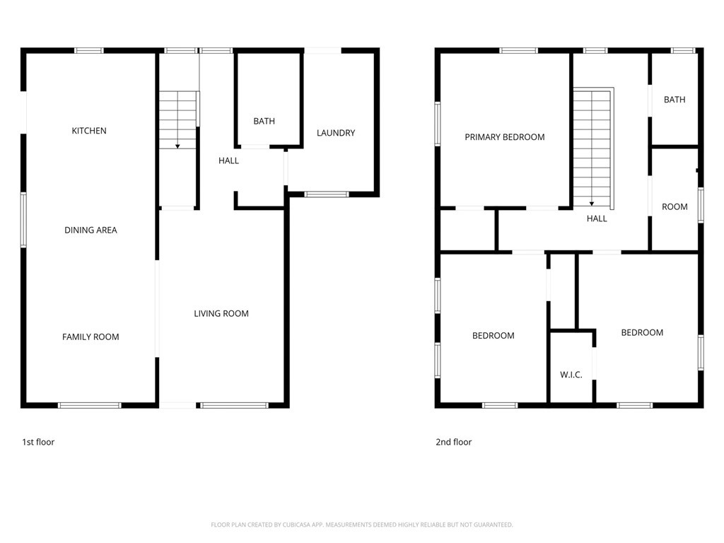
  • 3
  • Bedrooms
  • 2
  • Bathrooms
  • 0
  • Garage
  • 1600
  • Sqft
  • 541286
  • Property ID

Description

Character and charm abound! Located in the highly desirable town of Durham, home to stunning orchards, a short stroll to the elementary school, and that quintessential small-town feel while still being just minutes from Chico, this delightful property offers the best of both worlds. Originally the Durham firehouse, it has since been transformed into an inviting home designed for comfortable living. Highlights include ceiling fans throughout, a bonus office nook, new fences, owned solar and newer mini-splits both installed in 2022, just to name a few! Step inside and you’ll immediately notice the abundance of windows that fill the space with natural light. Any home chef will appreciate the open kitchen, complete with rich wood cabinetry, granite countertops, a dishwasher, and an electric range. Adjacent to the kitchen sits a spacious family room, ensuring the cook stays connected and guests have plenty of room to relax. Each bedroom offers generous space and well-sized closets. Out back, the patio provides a wonderful setting for barbecues, playtime, or outdoor entertaining. Raised garden beds and a mineola citrus tree make “living off the land” more efficient and easy. A laundry room with pet door and run complete this modernized small-town home. With its prime location, rich history, and impressive list of amenities, this home is the perfect place to settle in and enjoy life!

Details

Updated on February 21, 2026 at 6:30 am
Listed by Jessica Sorenson, Re/Max of Chico
  • Property ID: 541286
  • Price: $359,000
  • Property Size: 1600 Sqft
  • Land Area: 2614 Square Feet
  • Bedrooms: 3
  • Bathrooms: 2
  • Garage: 0
  • Year Built: 1948
  • Property Type: Residential
  • Property Status: Active

Schedule a Tour

Tour Type

Mortgage Calculator

Monthly
  • Down Payment
  • Loan Amount
  • Monthly Mortgage Payment
  • Property Tax
  • Home Insurance
  • PMI
  • Monthly HOA Fees
$
%
%
%
$
$
%

Similar Listings

Compare listings

Compare
  • Eddy