24035 Alpine Drive

  • $365,000
Crestline, California
Pending
24035 Alpine Drive
Crestline, California
  • $365,000

Overview

  • Residential
  • Property Type
  • 3
  • Bedrooms
  • 2
  • Bathrooms
  • 0
  • Garage
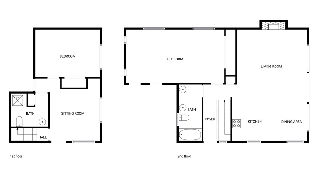
  • 1300
  • Sqft
  • 654817
  • Property ID

Description

Welcome to 24035 Alpine Dr, where thoughtful updates and deliberate design create a truly inviting atmosphere. The heart of the home is anchored by a central fireplace, creating a warm focal point for the primary living area. In the kitchen, a stylish accent backsplash adds a touch of modern flair, while fresh interior paint throughout the residence provides a bright and cohesive feel. Step outside onto the deck to enjoy a seamless connection to the outdoors, perfect for quiet mornings or evening relaxation. This property is a must-see for those seeking a comfortable and stylish home. Included 100-Day Home Warranty with buyer activation

Details

Updated on April 23, 2026 at 5:04 pm
Listed by MELISSA WESTFALL, OPENDOOR BROKERAGE INC.
  • Property ID: 654817
  • Price: $365,000
  • Property Size: 1300 Sqft
  • Land Area: 7000 Square Feet
  • Bedrooms: 3
  • Bathrooms: 2
  • Garage: 0
  • Year Built: 1977
  • Property Type: Residential
  • Property Status: Pending

Schedule a Tour

Tour Type

Mortgage Calculator

Monthly
  • Down Payment
  • Loan Amount
  • Monthly Mortgage Payment
  • Property Tax
  • Home Insurance
  • PMI
  • Monthly HOA Fees
$
%
%
%
$
$
%

Similar Listings

Compare listings

Compare
  • Eddy