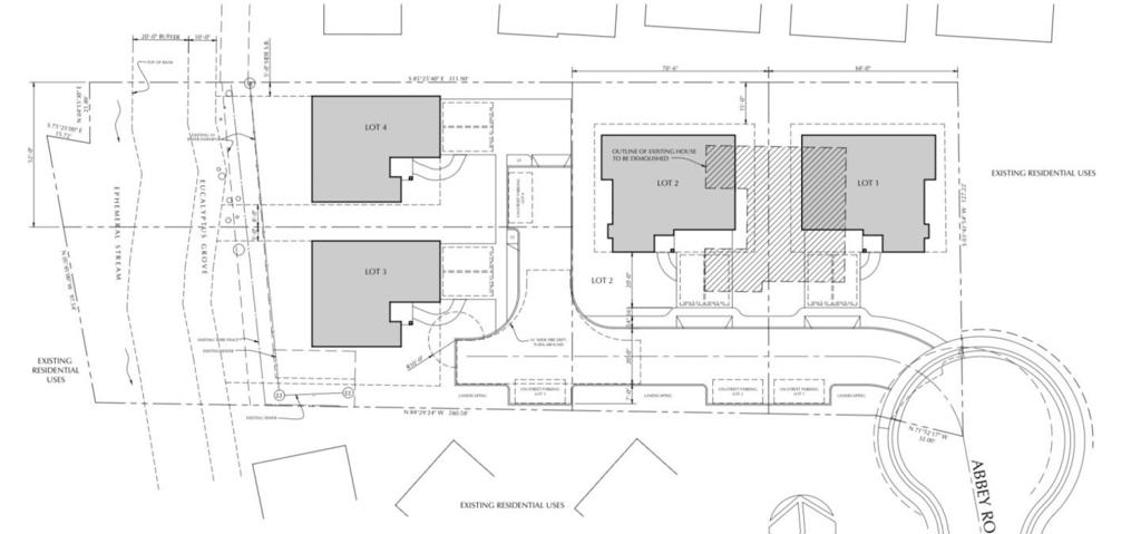
Attention Investors & Developers! This is an Incredible Opportunity! Single Family Home with Great Layout Ready for to be Your Next Rehab Project! Part of 4 Parcels Recently Split on Top Lot at Abbey Road. House to be Moved and Permit is Ready Now! Lot Can be Purchased for $525,000 and Seller Will Remove Structure! All Lots for Sale Now! Check Kaspian Court Listings! Highly Rated Soquel High School! Short Distance to Capitola Village, Cabrillo College, and New Brighton State Beach!
Compare listings
Compare